高支模坍塌致6死6傷!7人移送司法、5名公職人員被處分!武漢1·5事故調查報告公布
2020年1月5日15時30分左右,位于江夏區五里界天子山大道1號的武漢巴登城生態休閑旅游開發項目一期一(1)二標段發生一起較大坍塌事故,造成6人死亡,6人受傷。
坍塌現場視頻 ↓
https://v.qq.com/x/page/p3047ramtmf.html
近期,武漢市應急管理局公布《江夏區武漢巴登城生態旅游開發項目一期 一(1)二標段“1·5”較大坍塌 事故調查報告》。
門樓高大模板支撐體系架體未按照施工方案要求進行搭設,?軸線處400x1200梁支架沿梁跨度方向掃地桿、第一步水平桿缺失,使得水平桿步距超過方案設計步距的兩倍以上,致使梁支架的穩定性不滿足設計承載要求,且門樓高大模板支撐體系在搭設完畢后未按要求進行驗收。
現場在進行澆筑時,違反專項施工方案中采用對稱澆筑的要求,對門樓坡屋面采用不對稱澆筑,實際產生的附加彎矩增加了B軸線處400x2560梁支架立桿承受的壓力,導致該處梁支架穩定性不滿足設計承載要求。
現場澆筑完豎向結構(KZ1和KZ3兩根框架柱)后,未按照方案中“豎向結構強度達到50%以后,再澆水平構件”的要求,隨即開始梁板澆筑,由于豎向結構強度不夠,B軸線處400x2560梁鋼筋隨支架變形下撓,將框架柱拉倒,增加了事故的規模和慘烈程度。
事后,經對現場高大模板支撐體系架體材料(鋼管、扣件、可調頂托)進行取樣,并送檢,發現部分材料不合格,導致架體承載力及穩定性低于專項方案的設計預期。
上述原因疊加,導致事故發生。


1.施工單位:
未嚴格審核勞務公司相關建設施工勞務作業資質,把勞務工程發包給不具備安全生產條件的勞務單位(分包勞務內容為木工、泥工、鋼筋工、架子工、水電工、油漆工、電焊工等圖紙設計范圍內所需工種工作)。 未嚴格按照方案要求進行高大模板支撐體系搭設,在強度未達到要求的情況下即開始上部梁板的混凝土澆筑。 高大模板支撐體系架體部分鋼管、扣件、可調頂托等材料不合格。 盲目組織現場施工,在總監理工程師未簽署澆筑令的情況下違規組織澆筑施工作業。 項目安全員未取得相關安全管理資格等。
2.項目勞務單位:
未取得建設施工勞務作業資質及安全生產許可證書,不具備承攬建設施工勞務工程的資格。 將勞務工程轉包給個人勞務隊伍,存在違法轉包行為(與徐明燈、李大才、艾應龍、陳千榜、楊波浪、張寧等人分別簽訂了泥工、鋼筋連接、鋼筋植筋加固、模板、腳手架、鋼筋工等勞務承包合同)。 未配備專職或者兼職的安全生產管理人員,無相關安全教育培訓和安全檢查工作臺賬等。
3.監理單位:
項目監理人員未經監理業務培訓,安全監理工作能力不足。 現場安全監理和巡查檢查缺位,事故當天無監理人員在崗。 未及時發現和制止現場違規澆筑施工行為,未有效實施危險性較大的分部分項工程旁站監理等。
1.建議移送司法機關追究刑事責任的人員
鑒于事故有關7名責任人未落實安全生產責任,造成人員傷亡慘重,財產損失重大,涉嫌刑事犯罪,建議由司法機關依法追究刑事責任。
2.建議給予行政處罰的單位和個人
根據《安全生產法》有關規定,建議由市應急管理局對事故責任單位和主要負責人實施行政處罰。
3.建議給予黨紀政務處分的人員
對于在事故調查過程中發現的地方黨委政府、行業主管部門和有關單位其他公職人員等5人在履職盡責方面的問題,已將相關線索移交武漢市紀委監委責任追究審查調查組,由紀委監委按照干部管理權限和相關責任追究的規定提出處理意見。
全文如下:

一、事故工程及參建各方基本情況
(一)事故工程基本情況
事故項目為武漢巴登城生態旅游開發項目一期一(1)二標段,位于武漢市江夏區五里界天子山大道1號,主要建設1棟餐飲場所(地上2層),地下一層為停車庫。總建筑面積為22048.09㎡,總建筑高度為24.8m,其中,地下一層建筑面積為11029.28㎡,地上二層建筑面積為11018.81㎡,層高6m。發生坍塌建筑為地上建筑門樓部分,建筑面積267.1㎡,橫向跨度為20m,縱向跨度為21.3m,坡屋面結構坡度約為22.56度,層高8.8~11.5m。事發時現場正在進行飲食中心門樓坡屋面的混凝土澆筑。
(二)工程參建各方基本情況
建設單位為武漢巴登城投資有限公司,施工單位為山某建設集團有限公司,監理單位為湖北天成建設工程項目管理有限公司,勞務分包單位為湖北強國建筑勞務有限公司,商砼供應單位為武漢振新混凝土有限公司。
2019年3月,武漢巴登城投資有限公司與施工單位簽訂施工合同,主體工程為1棟飲食中心(2層)以及地下室,建筑面積共22048.09㎡,合同金額為7500萬元。2019年11月,武漢巴登城投資有限公司與施工單位簽訂施工合同總價包干補充協議,包干總價約為3475萬元。2019年2月,武漢巴登城投資有限公司與湖北天成建設工程項目管理有限公司簽訂監理合同,工程規模:總建筑面積22048.09㎡,合同金額約為23.4萬元。2019年9月,施工單位與湖北強國建筑勞務有限公司簽訂了勞務分包合同,提供分包勞務內容為木工、泥工、鋼筋工、架子工、水電工、油漆工、電焊工等圖紙設計范圍內所需工種工作。2019年9月30日,湖北強國建筑勞務有限公司與徐明燈、李大才、艾應龍、陳千榜、楊波浪、張寧等人分別簽訂了泥工、鋼筋連接、鋼筋植筋加固、模板、腳手架、鋼筋工等勞務承包合同。2019年5月4日,施工單位與武漢振新混凝土有限公司簽訂了建設工程預拌混凝土供應合同,預拌混凝土供應總量約為1.3萬m3,暫定總價為624萬元。
二、事故發生經過及救援情況
(一)事故發生經過
2020年1月4日晚,施工單位項目負責人趙學、技術負責人陳天佑、施工員漆浩三人商量飲食中心門樓混凝土澆筑有關事宜。當晚,趙學聯系湖北強國建筑勞務有限公司泥工班負責人徐明燈,問其是否有時間安排人員進行混凝土澆筑作業,徐明燈告知趙學第二天(1月5日)可以安排。隨后,漆浩聯系了武漢振新混凝土有限公司銷售張小龍協商第二天的混凝土運送事宜,陳天佑聯系湖北強國建筑勞務有限公司木工班鄭海權,要求其安排2名木工第二天到澆筑現場進行模板加固。
1月5日8時左右,湖北強國建筑勞務有限公司泥工班康丕軍、成少權、陳厚強、陳厚萬、鄧云華、錢學太、盧之田、徐名貴(女)、成儒美(女)等9人來到施工現場,盧之田負責在混凝土泵車上放料,其余8人負責在屋面進行澆筑混凝土。木工班陳振華、李小平兩人在下方架體內觀察混凝土澆筑時架體的狀態,并處置異常情況。武漢振新混凝土有限公司混凝土泵車操作員徐啟超在澆筑作業面操作混凝土泵車,負責遙控打泵。施工員漆浩在澆筑作業面負責現場施工管理。
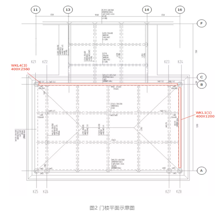
如圖1、圖2(門樓立面示意圖、平面示意圖)所示,1月5日10時左右,完成KZ1框架柱的澆筑。10時30分,完成KZ3框架柱的澆筑。12時左右,完成A作業面澆筑。12時30分左右吃完午飯后,接著澆筑門樓四周大梁。14時50分左右,開始對B、C、D作業面進行澆筑,此時合計澆筑了160多m3混凝土(總澆筑量為180m3)。15時30分左右,在澆筑E作業面過程中,門樓中間部位(B作業面)突然塌陷,隨即整個門樓全部垮塌,造成12名施工人員被困。事故發生后,現場人員立即撥打110、120、119等急救電話。


(二)事故救援情況
事故發生后,省、市領導高度重視,應急管理、建設、公安、消防、宣傳、衛健等部門迅速趕到現場進行救援處置。
經現場全力救援,于1月5日18時30分左右,先后救出7人送往江夏區第一人民醫院進行救治,其中1人經搶救無效死亡,6人受傷情況穩定。
1月6日凌晨1時20分至15時30分期間,先后救出5人,但現場確認已死亡。1月6日16時17分左右,現場經全面排查后確定無其他被困人員,搜救和清理工作全部結束。事故共造成6人死亡,6人受傷,直接經濟損失約為1115萬元。
1月6日16時17分左右,現場經全面排查后確定無其他被困人員,搜救和清理工作全部結束(圖3:救援結束后事故現場圖)。

三、事故傷亡及直接經濟損失情況
事故共造成6人死亡,6人受傷,直接經濟損失約為1115萬元。
四、技術分析情況
事故調查組邀請5名相關行業領域的專家進行了技術分析,通過查閱資料、人員詢問、取樣送檢和分析驗算,形成了武漢巴登城生態旅游開發項目一期一(1)二標段項目“1·5”高大模板支撐體系坍塌事故技術分析報告,有關情況如下:
(一)現場勘驗及測量結果分析
1.經核,2020年1月5日前,坍塌門樓已完成了6根框架柱的澆筑。具體情況是:2019年12月13日完成KZ5、KZ7框架柱的澆筑;2019年12月30日完成KZ6、KZ8框架柱的澆筑;2020年1月3日完成KZ2、KZ4框架柱的澆筑。
2.在對15處現場未遭破壞的腳手架立桿步距測量后,發現有9處腳手架立桿步距超出施工方案中腳手架立桿步距1.2米的要求,腳手架實際搭設不符合施工方案要求。
3.?軸線處(如圖2)400x1200大梁下方雙排支撐立桿、掃地桿及第一步水平桿處均缺少縱向水平桿。
(二)材料取樣檢測情況
事故發生后,市建設工程安全監督站組織江夏區建筑管理站、武漢巴登城投資有限公司、山某建設集團有限公司對事故現場鋼管、頂托、扣件等材料進行取樣,委托湖北省建筑工程質量監督檢驗測試中心進行檢測,發現部分直角扣件抗破壞性能不合格、旋轉扣件抗滑及抗破壞性能不合格、可調托撐部分抗壓性能不合格、鋼管彎曲試驗不合格。
(三)模板支架復核及驗算
1.原專項施工方案復核情況
根據原專項施工方案搭設參數表及施工工藝要求,通過分析計算坍塌區域?軸線處400x1200、B軸線處400x2560兩根大梁模板支架立桿穩定性,原施工方案設計參數長細比及穩定性均能滿足要求。
2.現場實際施工情況驗算情況
現場?軸線處400x1200梁底下方雙排支撐立桿掃地桿及第一步水平桿處均缺少縱向水平桿。按最不利受力情況考慮,步距取2600mm,鋼管壁厚取現場檢測平均壁厚2.4mm計算,該處立桿長細比及穩定性均不滿足安全技術規范要求。
現場坡屋面混凝土澆筑未按照方案規定進行對稱澆筑,產生的附加彎矩導致B軸線處400x2560梁底支撐立桿穩定性超出安全技術規范要求。
五、事故直接原因
事故調查組依據法律、法規和規定,通過調查取證和綜合分析,認定造成事故的原因如下:
門樓高大模板支撐體系架體未按照施工方案要求進行搭設,?軸線處400x1200梁支架沿梁跨度方向掃地桿、第一步水平桿缺失,使得水平桿步距超過方案設計步距的兩倍以上,致使梁支架的穩定性不滿足設計承載要求,且門樓高大模板支撐體系在搭設完畢后未按要求進行驗收。現場在進行澆筑時,違反專項施工方案中采用對稱澆筑的要求,對門樓坡屋面采用不對稱澆筑,實際產生的附加彎矩增加了B軸線處400x2560梁支架立桿承受的壓力,導致該處梁支架穩定性不滿足設計承載要求?,F場澆筑完豎向結構(KZ1和KZ3兩根框架柱)后,未按照方案中“豎向結構強度達到50%以后,再澆水平構件”的要求,隨即開始梁板澆筑,由于豎向結構強度不夠,B軸線處400x2560梁鋼筋隨支架變形下撓,將框架柱拉倒,增加了事故的規模和慘烈程度。事后,經對現場高大模板支撐體系架體材料(鋼管、扣件、可調頂托)進行取樣,并送檢,發現部分材料不合格,導致架體承載力及穩定性低于專項方案的設計預期。上述原因疊加,導致事故發生。
六、事故間接原因
調查發現相關企業、屬地及行業管理部門在日常管理和監督檢查中,存在以下主要問題:
(一)企業安全生產主體責任不落實
1.施工單位山某建設集團有限公司安全管理責任落實不到位:一是未嚴格審核湖北強國建筑勞務有限公司相關建設施工勞務作業資質,把勞務工程發包給不具備安全生產條件的勞務單位。二是未嚴格按照方案要求進行高大模板支撐體系搭設,且未嚴格落實高大模板支撐體系安全驗收程序,在高大模板支撐體系搭設完成后,未按規定組織驗收。三是未嚴格落實高大模板支撐安全專項施工方案要求,在澆筑完門樓KZ1和KZ3兩根框架柱后,在強度未達到要求的情況下即開始上部梁板的混凝土澆筑。四是未按規定對高大模板支撐體系架體材料進行查驗,部分鋼管、扣件、可調頂托等材料不合格,導致架體的承載力及穩定性不滿足方案的設計預期。五是盲目組織現場施工,在總監理工程師未簽署澆筑令的情況下違規組織澆筑施工作業。六是未按要求配備專職安全生產管理人員,項目安全員未取得相關安全管理資格。七是未按規定組織開展安全教育培訓,在施工作業前未有效組織安全技術交底,相關工作臺賬不健全。
2.項目勞務單位湖北強國建筑勞務有限公司安全生產責任不落實:一是未取得建設施工勞務作業資質及安全生產許可證書,不具備承攬建設施工勞務工程的資格。二是在承接勞務工程后,將勞務工程轉包給個人勞務隊伍,存在違法轉包行為。三是安全生產基礎工作薄弱,未建立安全生產責任制和安全管理制度,未配備專職或者兼職的安全生產管理人員,無相關安全教育培訓和安全檢查工作臺賬。四是未對現場勞務作業過程實施管控,未督促檢查勞務安全生產工作,安全管理缺位。
3.監理單位湖北天成建設工程項目管理有限公司安全監理責任不落實:一是未有效督導和檢查項目監理機構工作,未合理安排和組織現場安全監理工作,項目監理人員未經監理業務培訓,安全監理工作能力不足。二是未嚴格審核湖北強國建筑勞務有限公司相關建設施工勞務作業資質,進場前勞務單位資質把關不嚴。三是未嚴格履行危險性較大的分部分項工程的驗收程序,高大模板支撐體系搭設完畢后未組織安全驗收,未及時發現存在的安全隱患。四是現場安全監理和巡查檢查缺位,事故當天無監理人員在崗,未及時發現和制止現場違規澆筑施工行為,未有效實施危險性較大的分部分項工程旁站監理。五是未嚴格開展項目日常安全監理工作,監理日志未全面記錄危險性較大的分部分項工程實施情況,安全監理基礎工作不扎實。
4.建設單位武漢巴登城投資有限公司安全管理責任落實不到位:一是未全面掌握高大模板支撐體系施工進度,未及時督促項目嚴格落實危險性較大的分部分項工程的驗收程序。二是未有效開展現場巡查,未及時發現和制止現場違規澆筑施工行為。三是未按軍運會期間停復工工作要求,組織施工、監理單位對項目復工前的安全生產狀況進行檢查,隱患排查治理不到位。
(二)屬地及行業管理部門安全監管責任履行不到位
1.江夏區建筑管理站作為轄區房屋和市政基礎建設工程質量及安全的監督管理部門,未嚴格履行安全監管責任:一是未嚴格落實冬季房建工程安全生產專項整治行動有關要求,未有效督促項目參建各方開展危險性較大的分部分項工程管理情況的自查自改。二是未及時發現無資質勞務單位承接項目勞務工程的問題,日常安全監督檢查工作不細致。三是對項目在軍運會期間的停復工抽查檢查工作不到位,未能及時發現項目高大模板支撐體系安全驗收未落實的問題。
2.江夏區住房和城鄉建設局作為江夏區建筑管理站上級主管單位,未有效督促和指導區建筑管理站開展安全監督管理,對區建筑管理站未嚴格落實冬季房建工程安全生產專項整治行動實施方案的問題失察。
3.江夏區人民政府作為屬地政府,安全生產屬地監管責任落實不到位,未深入督促和指導轄區開展建筑行業安全生產隱患排查工作,對區住房和城鄉建設局安全監管責任履行不到位的問題失察。
七、事故性質、責任區分及處理建議
經調查認定,該事故是一起較大生產安全責任事故。依據有關法律、法規和規定,事故調查組建議對事故有關單位和個人處理如下:
(一)建議移送司法機關追究刑事責任的人員
鑒于事故有關7名責任人未落實安全生產責任,造成人員傷亡慘重,財產損失重大,涉嫌刑事犯罪,建議由司法機關依法追究刑事責任。
(二)建議給予行政處罰的單位和個人
根據《安全生產法》有關規定,建議由市應急管理局對事故責任單位和主要負責人實施行政處罰。
(三)建議給予黨紀政務處分的人員
對于在事故調查過程中發現的地方黨委政府、行業主管部門和有關單位其他公職人員等5人在履職盡責方面的問題,已將相關線索移交武漢市紀委監委責任追究審查調查組,由紀委監委按照干部管理權限和相關責任追究的規定提出處理意見。
(四)其他處理建議
責成江夏區建筑管理站和江夏區住房和城鄉建設局向江夏區人民政府作出深刻書面檢查。責成江夏區人民政府向市人民政府作出深刻書面檢查。
八、事故防范及整改措施
(一)深刻汲取事故教訓,切實落實安全生產責任。各區、各有關部門和企業要充分認識安全生產工作的極端重要性,進一步提高政治站位,牢固樹立安全生產紅線意識和安全發展理念,時刻筑牢安全生產思想防線,全面貫徹落實習近平總書記關于安全生產工作的重要講話和批示指示精神,嚴格按照“三個責任”和“三個必須”的要求,不折不扣抓好各項工作落實落地。要深刻汲取事故教訓,把安全生產工作擺在更加突出的位置,進一步健全安全生產責任體系,完善安全生產管理制度,扎實開展安全隱患排查治理工作,采取有力措施,有效防范和減少生產安全事故,切實推動安全生產形勢持續穩定好轉。
(二)加強危險性較大的分部分項工程安全管理,切實落實各項安全防范措施。項目參建各方要切實加強高大模板支撐體系等危險性較大的分部分項工程安全管理,建設單位在申請辦理施工許可手續時,應當提交危大工程清單及其安全管理措施等資料。施工單位應當在危大工程施工前組織工程技術人員編制專項施工方案。對于超過一定規模的危大工程,施工單位應當組織召開專家論證會對專項施工方案進行論證。對于按照規定需要驗收的危大工程,施工單位、監理單位應當組織相關人員進行驗收。驗收合格的,經施工單位項目技術負責人及總監理工程師簽字確認后,方可進入下一道工序。專項施工方案實施前,編制人員或者項目技術負責人應當向施工現場管理人員進行方案交底。監理單位應當結合危大工程專項施工方案編制監理實施細則,并對危大工程施工實施專項巡視檢查。
(三)嚴把資質審核關,杜絕違法分包轉包等行為。要強化對勞務隊伍和人員的安全管理,進一步規范工程發包分包行為。要嚴格把好工程項目準入關,加強安全生產條件審查,嚴禁將勞務項目發包給不具備安全生產條件或相應資質的單位和個人。要按規定簽訂安全生產管理協議,進一步明確發包與承包單位安全生產管理職責。加強施工現場組織協調,強化過程管控,督促勞務人員嚴格按照規范要求進行作業,對作業人員違章行為要及時制止和督促整改,確保現場施工安全。
(四)強化監管執法力度,深化建筑施工領域安全專項治理。要狠抓事前防范,進一步深化建筑施工領域安全大檢查、“打非治違”和隱患排查治理工作,將事故扼殺在萌芽狀態。要重點加強模板支撐、起重機械、深基坑、土方開挖、腳手架搭設、拆除等危險性較大的分部分項工程作業的監管,重點防范坍塌、高處墜落、機械傷害、起重傷害、物體打擊等事故,進一步督促項目參建各方加強現場隱患排查,強化現場安全措施。要重點加強對現場安全管理混亂的、事故隱患較多以及整改不力的、安全施工條件不夠的、近兩年發生過事故的項目和單位的監管力度,加大巡查檢查頻次,有效實施管控。要對安全生產失信企業實行聯合懲戒,使其一處失信,處處受限。通過嚴厲處罰手段,在全市在建項目和施工企業中起到教育警示和威懾作用。
武漢市“1·5”較大坍塌事故調查組
2020年6月
